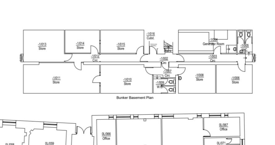
Built during the Cold War along with the other London boroughs' civil defence bunkers. The bunker contains a slope main entrance situated around the back of Chelsea Old Town Hall and two escape exits either side below the car park.
The bunker is currently disused.